ELKEN DISTRIBUTION CENTRE, SUBANG UEP
enhances effectiveness for higher efficiency and productivity

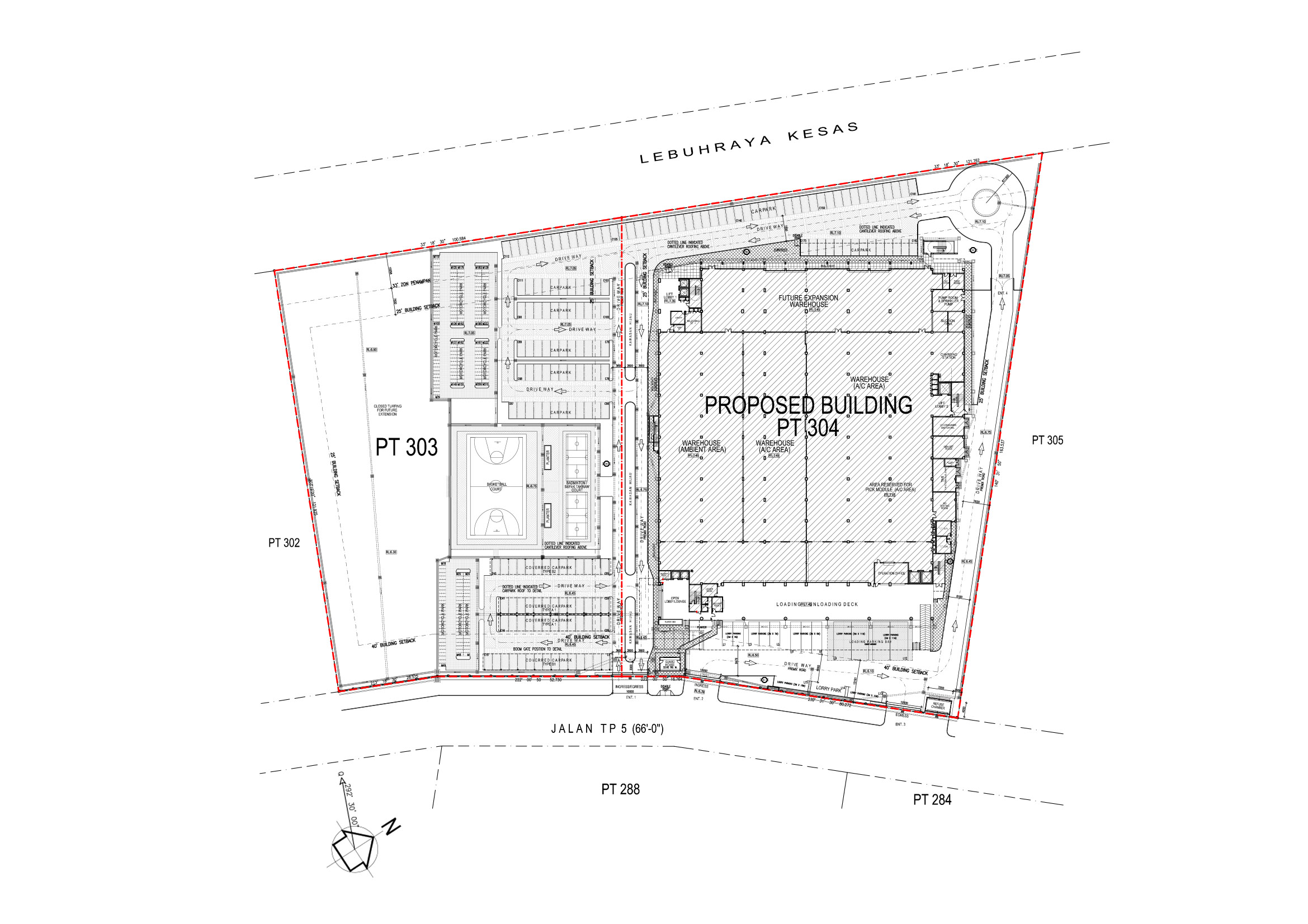
PROJECT DESCRIPTION:

Built in 2013, Elken Distribution Centre is a place of remarkable significance as it was Malaysia’s first industrial green building with a GBI Gold certification. 

The 300,000 sqft building features Elken’s brand new
office together with new distributor spaces that are equipped with state-of-art facilities to facilitate
events and gatherings. 

The first floor of the distribution hub contains Elken’s main warehouse, which has the capacity to house 6,000 factory pallets, provides a better working environment, and significantly enhances effectiveness for higher efficiency and productivity.

PROJECT:
3 Storey Industrial building, Taman Perindustrian Subang UEP, Subang Jaya, Selangor.
TYPE:
Industrial
CLIENT:
Elegant Group Sdn Bhd
LOCATION:
Subang Jaya, Selangor.
COMPONENTS: Distribution Centre, GMP Manufacturing, Warehouse cum Office.
STATUS:
Completed 2013
WEBSITE:
www.elken.com
PROJECT LEADER:
Ar. Ngai Yoon Fatt
ASSOCIATE IN-CHARGED:
Ar. Wong Wai Leong
OTHERS: GBI Rating Building (Gold)