CAMEI PRECISION ENGINEERING
new manufacturing plant in Beranang, Selangor

PROJECT DESCRIPTION:

Camei has relocated several times to keep pace with its amazing speed of expansion. Now, Camei is
operating from its new manufacturing plant in Beranang, Selangor. 

Spanning 60,000 sq. ft, the premises are equipped with cutting-edge machinery to ensure the highest standard in precision engineering is attained. Among the technologically-advanced equipment are 6M, 4M, 3M, 2M, CNC milling machines, CNC vertical and horizontal lathe machines, manual milling machines, cylindrical grinders, surface grinders, EDM, CNC wire-cutting machines, CNC oxy-cut, and computer-aided design facilities.

PROJECT:
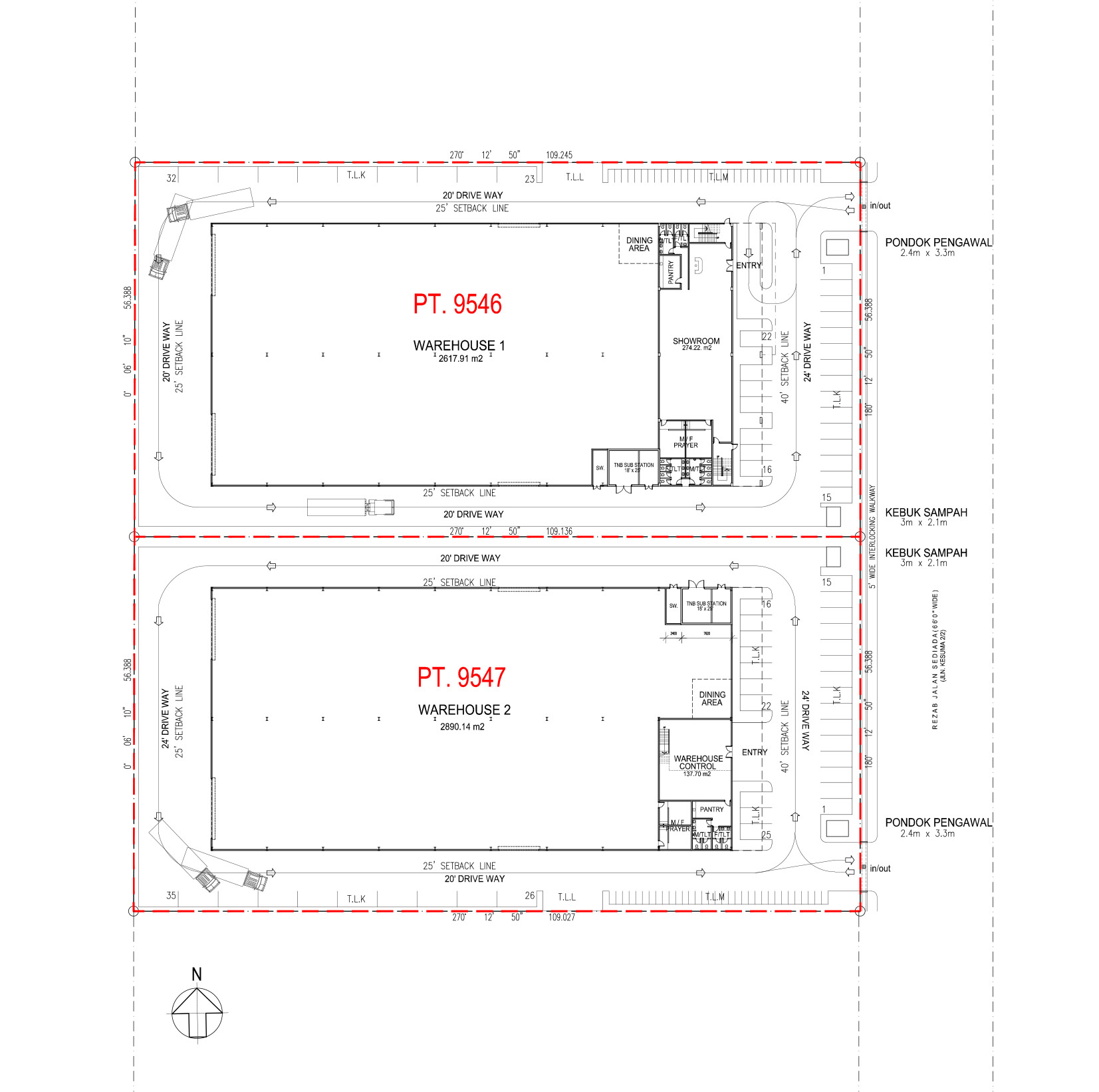
2 Unit Industrial Building @ Bandar Tasek Kesuma, Beranang, Selangor.
TYPE:
Industrial
CLIENT:
Camei Precision Engineering
LOCATION:
Beranang, Selangor.
COMPONENTS: Manufacturing, Warehouse cum Head Quarter Office.
STATUS:
Completed 2014
WEBSITE:
https://www.camei.com.my/
PROJECT LEADER:
Ar. Ngai Yoon Fatt
ASSOCIATE IN-CHARGED:
Ar. Wong Wai Leong